$480,000
11417 SW 214thMiami, FL 33189
MLS# FX-10511334

1 / 8
Property Description
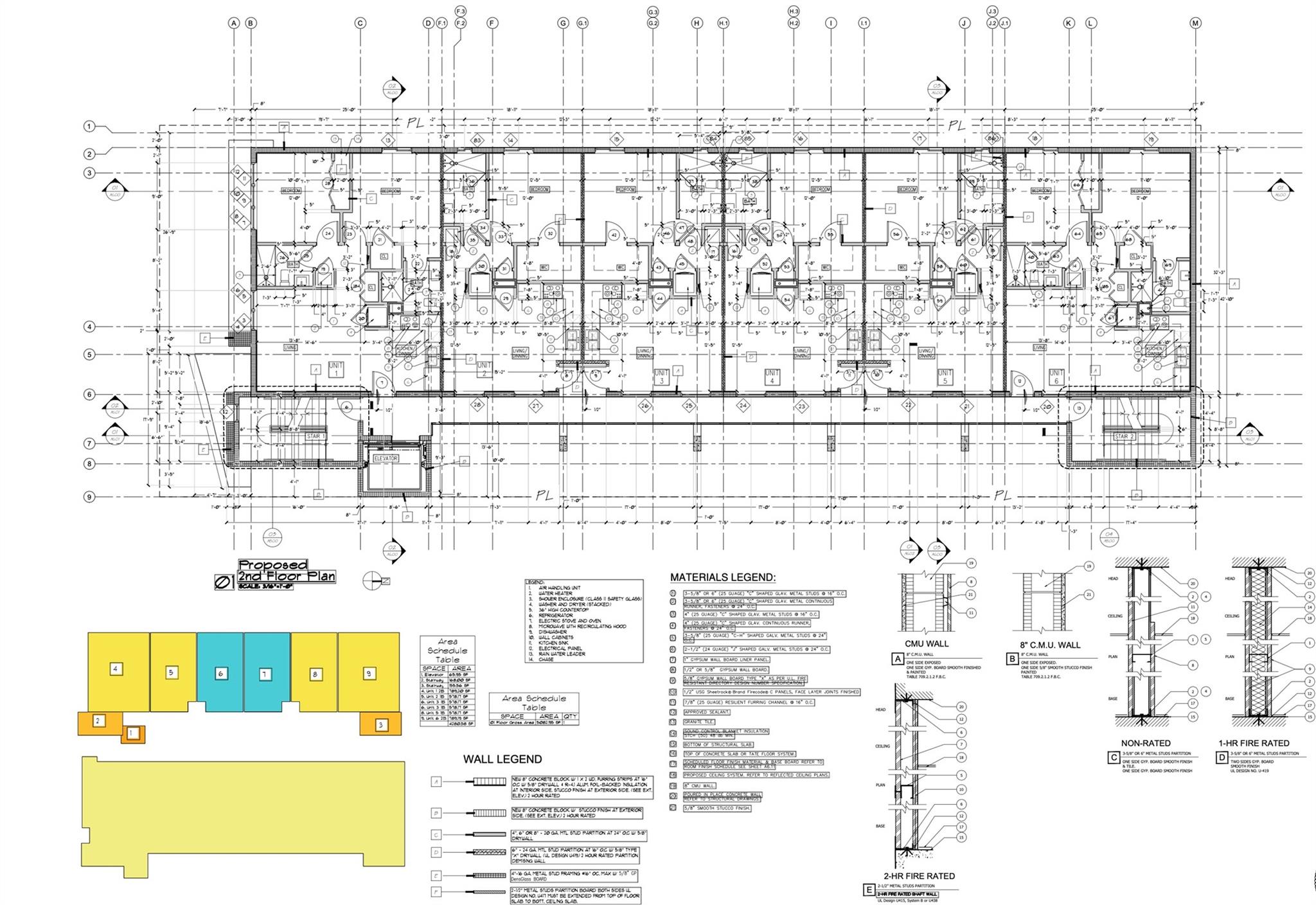
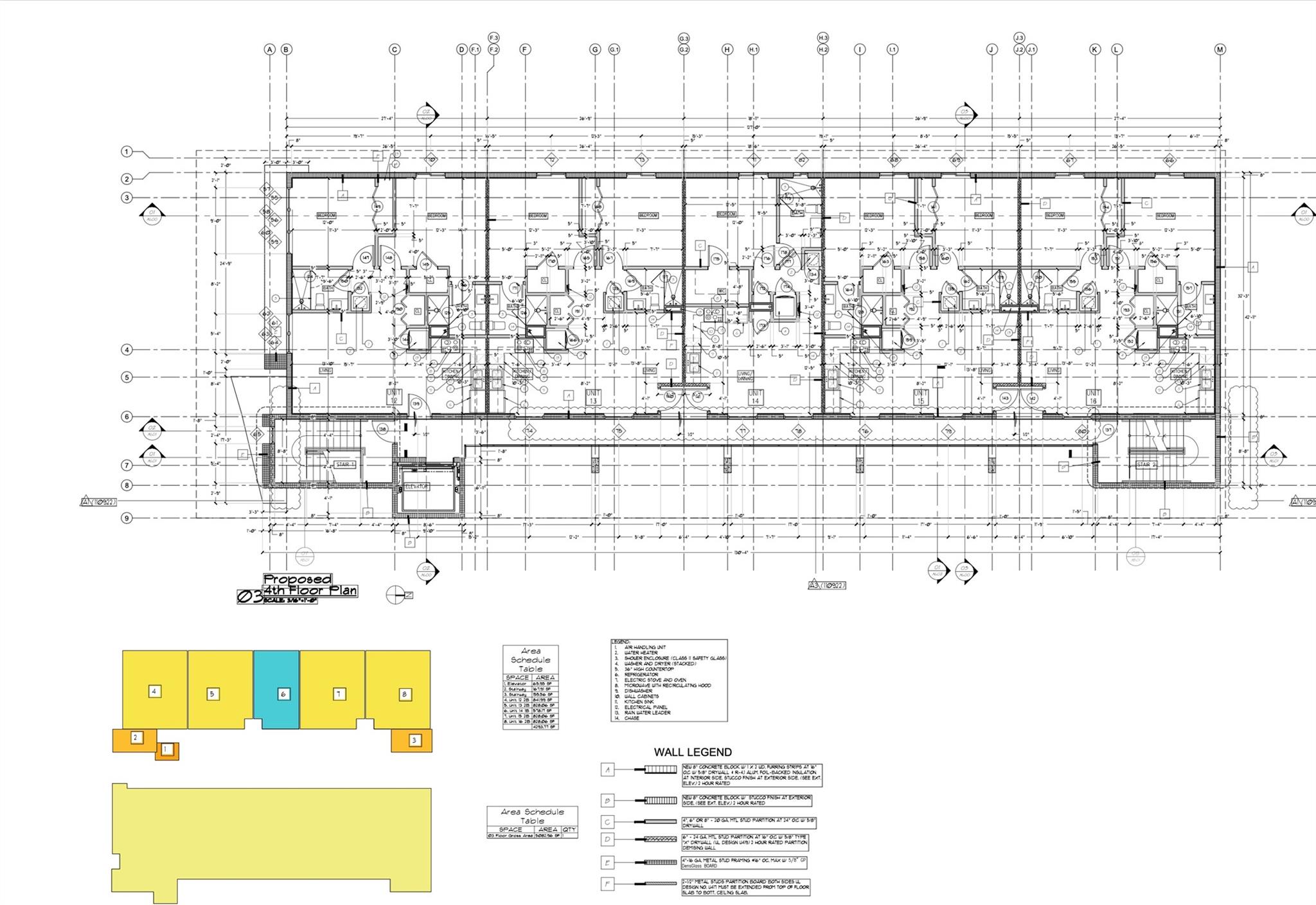
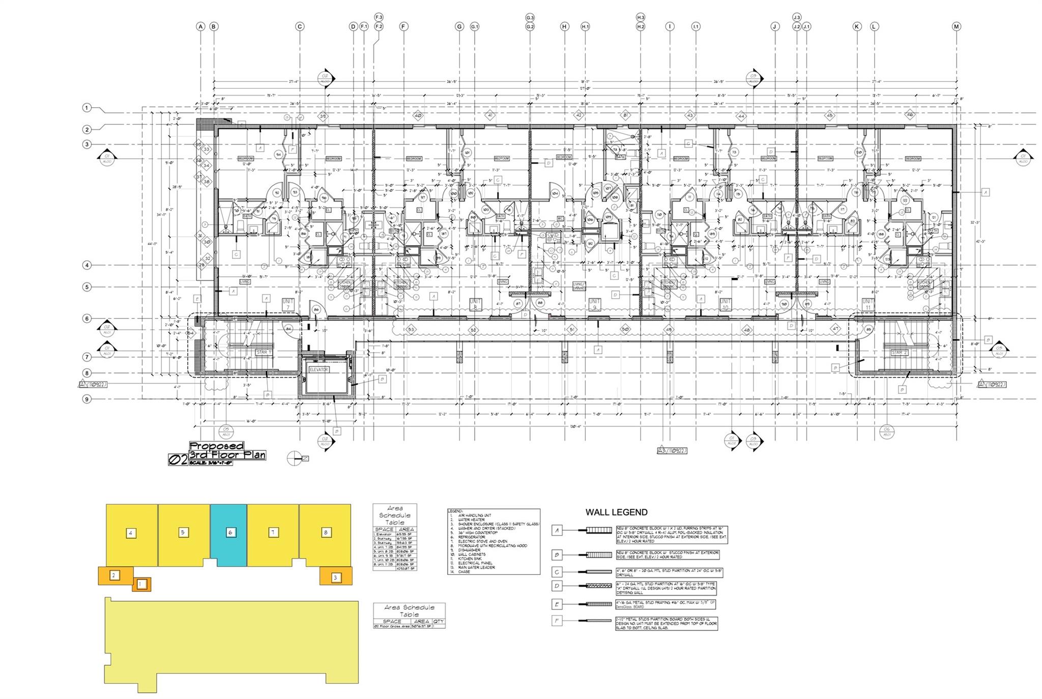
Goulds 214 features a 7,000 SF site with APPROVED plans for a boutique 16-unit apartment building, completewith surface parking; offered at $30k/Door. The property benefits from zoning that permits up to 90 units peracre, offering flexibility and potential for future densification. This prime boutique development opportunity islocated just off US 1, less than 2 miles from Florida's Turnpike, and directly adjacent to the upcoming Bus RapidTransit (BRT) station, a key component of a collaborative federal-state initiative designed to enhance regionalconnectivity across the Greater Miami Area. The site is ideally positioned only 1.7 miles from the bustlingSouthland Mall, which spans one million square feet and features over 100 retailers, with major renovationsand redevelopment
Details
Maps
Contract Information
Listing Date: 2025-06-21
Status: Active
Original List Price: 480000
List Price: $480,000
Current Price: $480,000
List Price/Acre: 3000000
General Property Description
Type: Single Family Detached
Lot Dimensions: 7000
Lot SqFt: 7000
Lot Frontage: 45
Lot Depth: 137
Acres: 0.16
Waterfront: No
Subdivision: Mays Add
Homeowners Assoc: None
Directions: VACANT LOT: off US 1, less than 2 miles from Florida's Turnpike and adjacent to the upcoming BRT station offSW 214th St"
Location Tax Legal
Area: 2600
County: Miami-Dade
Parcel ID: 30-60-07-004-0270
Street #: 11417
Street Dir: SW
Street Name: 214th
Zip Code: 33189
Legal Desc: 7 56 40 MAYS ADD TO GOULDS FLA LOT 31 PB 45-14 LOT SIZE 50.000 X 140 OR 13492-226 1187 1 COC 24472-0401 04 2006 6
Geo Lat: 25.56834
Geo Lon: -80.376888
Property Features
Land Use: Multi-Family Med Den
Location: Other
Lot Description: Public Road
Comp Plan Use: Central Urban; Other
Utilities Avail: Cable; Electric; Phone Line; Public Water; Septic Sewer; Trash Removal
Utilities On Site: Public Water; Sewer
Roads: City/County Maint.; Mainthru; Public
Trees: None
Usage: Unimproved Multi-Fam
Terms Considered: Cash; Conventional
Listing Office: Blue Lighthouse Realty, INC
Last Updated: June - 22 - 2025

This information is not verified for authenticity or accuracy and is not guaranteed and may not reflect all real estate activity in the market. Copyright 2026 Beaches Multiple Listing Service, Inc. All rights reserved. Information Not Guaranteed and Must Be Confirmed by End User. Site contains live data.
Friday 6th of March 2026 02:37 PM